Se trata de un microsolar privado donde no hay posibilidad de desarrollar un edificio de vivienda colectiva. Consta que en algún momento se solicitó licencia para construir una vivienda unifamiliar que tampoco se ejecutó.

La propuesta es aprovechar la ventaja de la administración pública por su capacidad de crear edificios de alojamiento -una tipología fuera del alcance de la iniciativa privada- para negociar una permutar del solar en condiciones ventajosas. Es razonable considerar que un propietario, aparentemente unipersonal, atado de manos en en cuanto a las posibilidades de desarrollo de su bien patrimonial, pueda acceder a un trato win-win con el ayuntamiento.

A partir de aquí, se aconseja la construcción de un local, cuatro alojamientos y cubierta comunitaria desarrollada con técnicas en seco industrializadas basadas sobre todo en la utilización de madera contralaminada (CLT, Counter Laminated Timber) estructural, que puede preverse se puede ejecutar en un plazo de pocos meses gracias a las características del proyecto y del sistema constructivo.


La reducción del periodo de obra, habitualmente superior a un año, a solo 4-6 meses, y el consecuente adelanto de la entrada en funcionamiento del edificio, se tendrían que contabilizar como activos positivos en la previsión económica.

– Viabilidad urbanística: inmediata para tratarse de zona 12-b.
– Mapa de agentes:
Propiedad: privada
Usuario: en desuso
Condicionantes y relación entre agentes: posible trato de permuta
– Tipo de operación constructiva: obra nueva
– Sistema constructivo recomendado: industrializado basado principalmente en paneles de madera CLT preconfigurados al milímetro mediante corte y codificación digital.
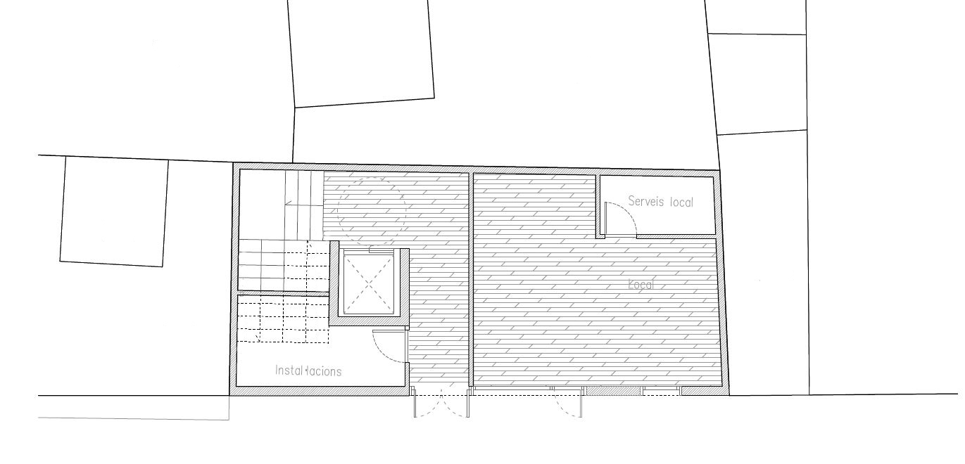
– Prestaciones del edificio: PB +4, con1 local y 4 viviendas
– Previsión de inversión: aproximadamente 350.000 euros.