Es tracta d’un microsolar privat on no hi ha possibilitat de desenvolupar un edifici d’habitatge col·lectiu. Consta que en algun moment es va sol·licitar llicència per a construir un habitatge unifamiliar que tampoc es va executar.

La proposta és aprofitar l’avantatge de l’administració pública per la seva capacitat de crear edificis d’allotjament per a negociar una permutar del solar en condicions avantatjoses. És raonable considerar que un propietari, aparentment unipersonal i d’origen estranger, lligat de mans en quant a les possibilitats de desenvolupament del seu bé, es pot avenir a un bon tracte amb l’ajuntament.

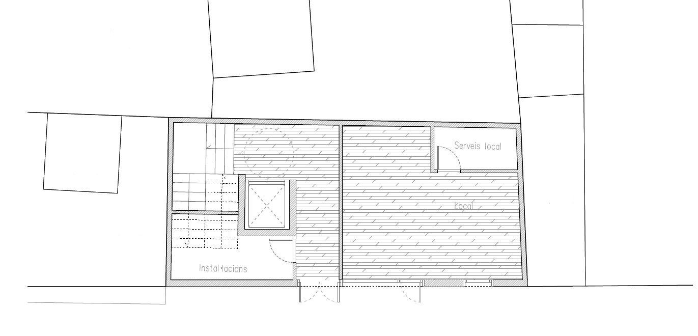
A partir d’aquí, s’aconsella la construcció d’un local, quatre allotjaments i coberta comunitària desenvolupada amb tècniques en sec industrialitzades basades sobretot en la utilització de fusta contralaminada CLT estructural, que pot preveure’s es pot executar en un termini de pocs mesos gràcies a les característiques del projecte i del sistema constructiu.


La reducció del període d’obra, habitualment superior a un any, a només 4-6 mesos, i el conseqüent avançament de l’entrada en funcionament de l’edifici, s’haurien de comptabilitzar com actius positius en la previsió econòmica.

– Viabilitat urbanística: immediata per tractar-se de zona 12-b.
– Mapa d’agents:
Propietat: privada
Usuari: en desús
Condicionants i relació entre agents: possible tracte de permuta
– Tipus d’operació constructiva: obra nova
– Sistema constructiu recomanat: industrialitzat basat principalment en panells de fusta CLT preconfigurats.
– Prestacions de l’edifici: PB +4, amb1 local i 4 habitatges
– Previsió de inversió: aproximadament 350.000 euros.